Housing Information
空き家情報バンク 物件情報詳細
この物件の問い合わせ先
横田建設株式会社
〒912-0053 福井県大野市春日3丁目18-9
TEL0779-66-5650
物件詳細情報
| 分類 | 住宅及び土地 |
|---|---|
| 売買価格 | 550万円 |
| 所在地 | 福井県大野市上丁21−33 |
| 建築年 | 2002年 築23年 |
| 土地面積 | 581.18㎡ |
| 建物面積 | 184.01㎡ |
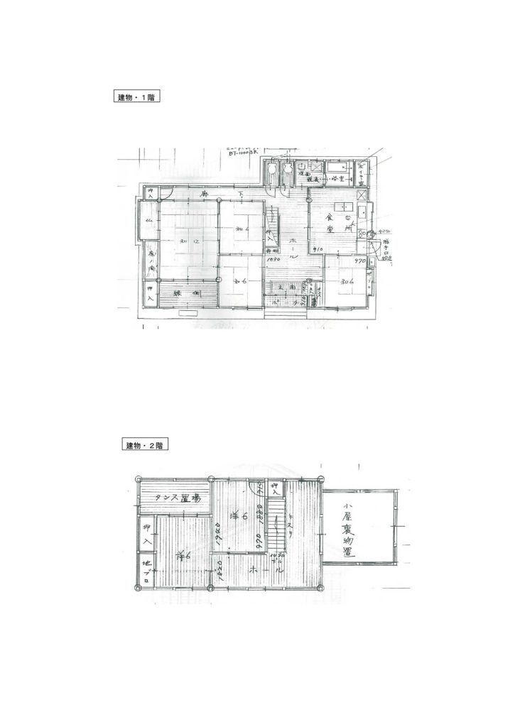
| 間取り | 1階 居間6畳、台所、風呂、トイレ、和室12畳、和室6畳、和室6畳 2階 トイレ、その他(納戸)8畳、洋室6畳、洋室6畳 |
| 構造 | 木造 |
| 補修の要否 | 多少の補修必要 |
| 補修費用の負担 | 所有者負担 |
| 利用状況 | 身内が管理 |
| 主な施設等までの距離 | 牛ケ原駅まで徒歩約28分 バローこぶし通り店まで約3.5km ショッピングセンターVIOまで約3.0km |
| 物件の特徴 | 蔵・車庫・倉庫付きの住宅です |
| 特記事項 | 浄化槽 |
物件所在地
この物件の問い合わせ先
横田建設株式会社
〒912-0053 福井県大野市春日3丁目18-9
TEL0779-66-5650






































