Housing Information
空き家情報バンク 物件情報詳細
この物件の問い合わせ先
横田建設株式会社
〒912-0053 福井県大野市春日3丁目18-9
TEL0779-66-5650
物件詳細情報
| 分類 | 住宅 |
|---|---|
| 賃借価格 | 8.3万円/月額 |
| 所在地 | 福井県大野市日吉町101−1 |
| 建築年 | 建築年:2009年 築16年 |
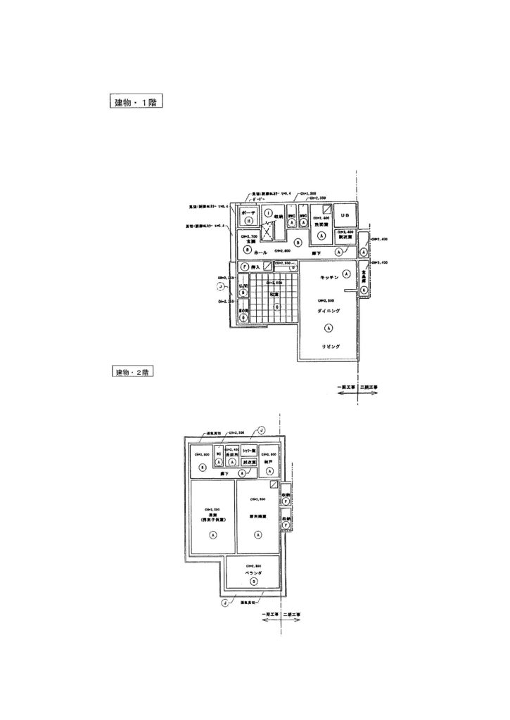
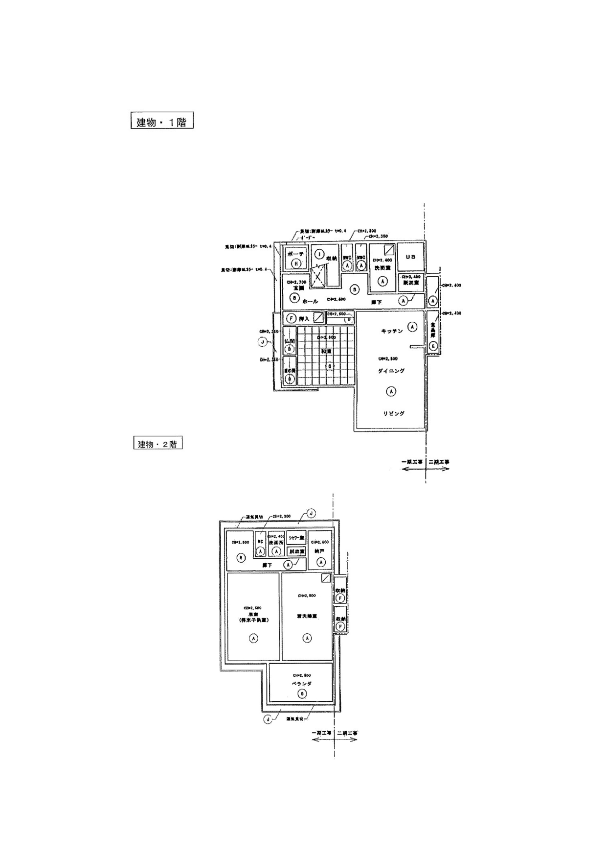
| 建物面積 | 1階86.43㎡ 2階64.89㎡ |
| 間取り | 1階 居間20.4畳、台所、風呂、トイレ、和室8畳 2階 洋室13.3畳、洋室13.7畳、トイレ、納戸、バルコニー |
| 構造 | 木造 |
| 補修の要否 | 補修は不要 |
| 補修費用の負担 | 所有者負担 |
| 利用状況 | 身内が管理 |
| 主な施設等までの距離 | 越前大野駅まで徒歩5分 バローこぶし通り店まで7.8km 有終南小学校まで7.3km |
| 物件の特徴 | 入居年数2年ほどで、使用感も少なくすぐに入居可能です。 キッチンIH、エコ給湯のオール電化住宅。 |
| 特記事項 | 上水:井戸 下水:浄化槽 |
物件所在地
この物件の問い合わせ先
横田建設株式会社
〒912-0053 福井県大野市春日3丁目18-9
TEL0779-66-5650

_page-0001-725x1024.jpg)





_page-0001-260x210.jpg)






























